Mediciones 3D precisas con escáner láser para planos detallados, ideales para reformas y propiedades sin documentación actualizada
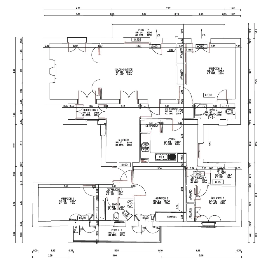
Con nuestro servicio, llevamos a cabo mediciones 3D utilizando tecnología de escáner láser para capturar con precisión milimétrica el estado actual de viviendas y edificaciones. Esta metodología nos permite crear planos detallados que no solo incluyen la disposición del espacio, sino también todos los elementos y dimensiones relevantes.
Nuestra herramienta de escaneo láser nos brinda una representación digital completa de la propiedad, desde el suelo hasta el techo, proporcionando datos exactos sobre la distribución de habitaciones, dimensiones, detalles arquitectónicos y más. Este enfoque es especialmente útil para proyectos de reforma, donde la precisión en las mediciones es crucial para garantizar un diseño y una ejecución precisos.
Además, nuestros servicios son ideales para aquellas propiedades que carecen de documentación actualizada o planos precisos. Al obtener una representación digital exacta del espacio, podemos proporcionar a nuestros clientes la información necesaria para llevar a cabo proyectos de renovación o mantenimiento de manera eficiente y efectiva.


